Projects
Profile
Contact
Back
Residential
Multi-Family Residential
Arts & Community
Masterplan & Urban Design
Projects
Residential
Multi-Family Residential
Arts & Community
Masterplan & Urban Design
Profile
Contact
320 walnut street
CLIENT:
PMC
LOCATION:
Philadelphia, PA
WALNUT ST FACADE
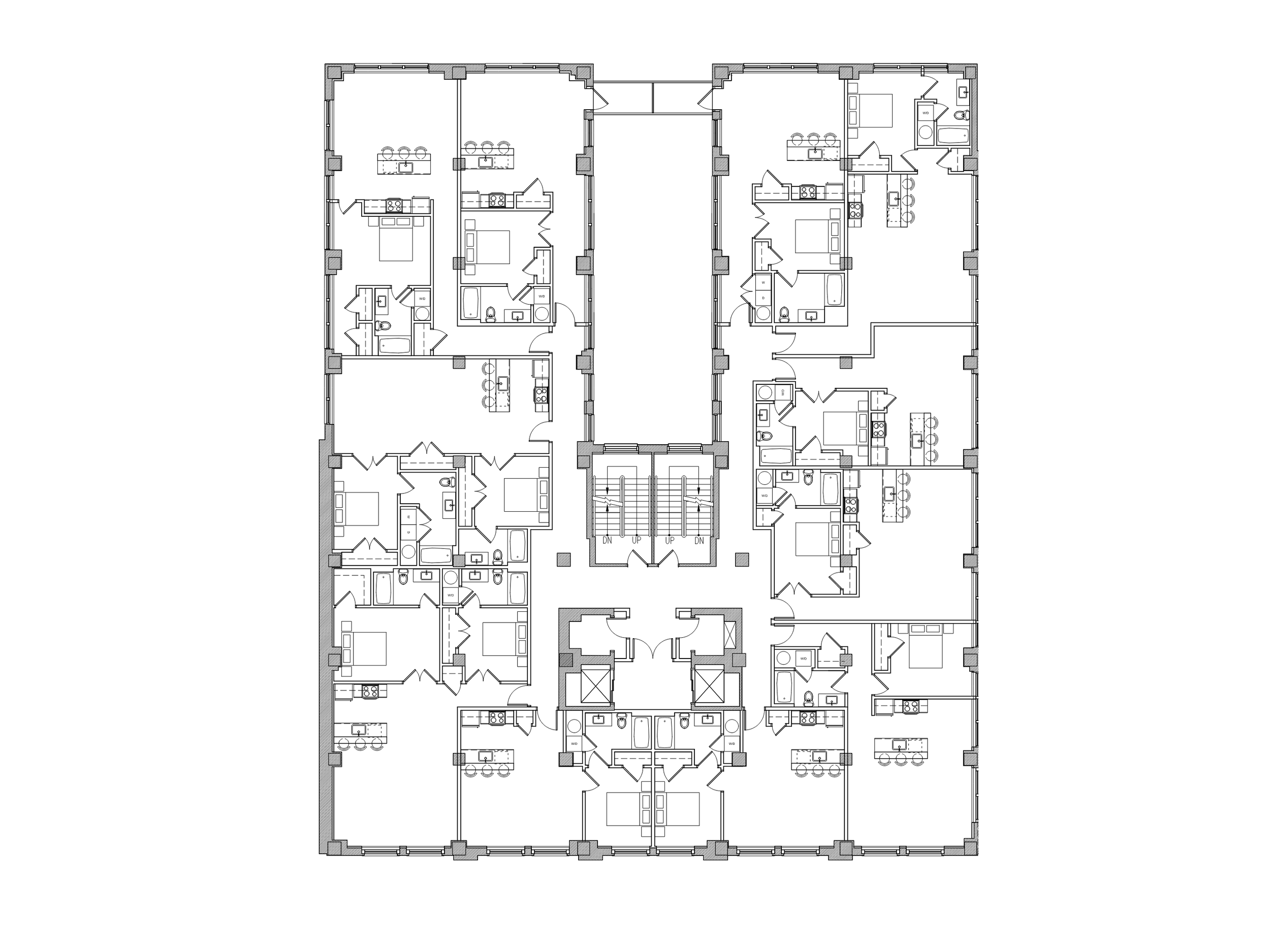
TYPICAL FLOOR PLAN
LEVEL 6 PLAN
LEVEL 6 LOFT PLAN
ROOF PLAN